10

NazarAbad Commercial office Complex

8
Location
Karaj
Year
2020
Area
2,300 sqm
Category
Architecture | Interior Design
Type
Multipurpose complex
Status
Concept
Client
Private
Architecture: Sara Najafzadeh
Design Team: Sara Najafzadeh | Vahid Nejad Fallah | Parand Tashakori | Kimia Heydari | Mahdi Moazeni | Haniye Rezayi

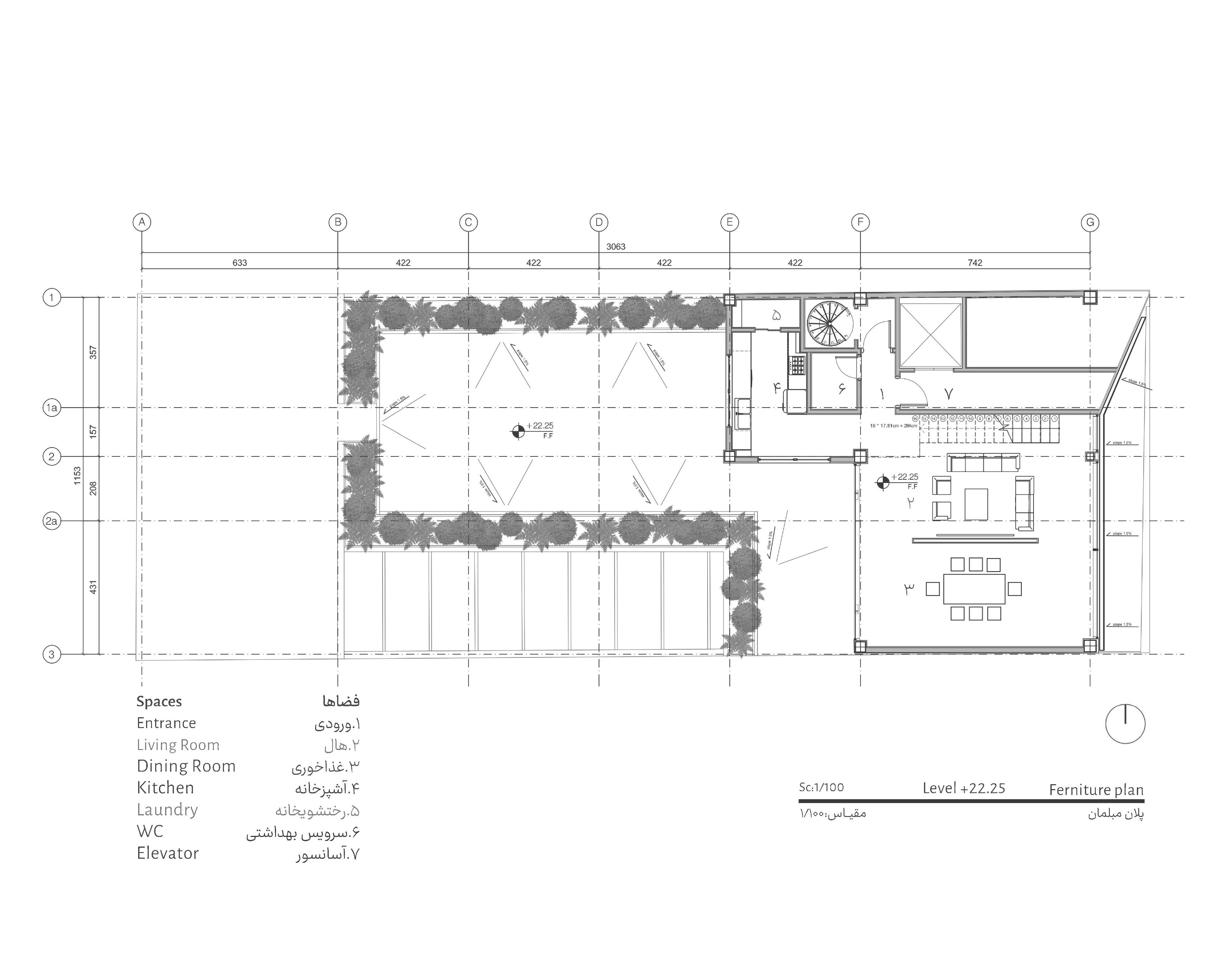
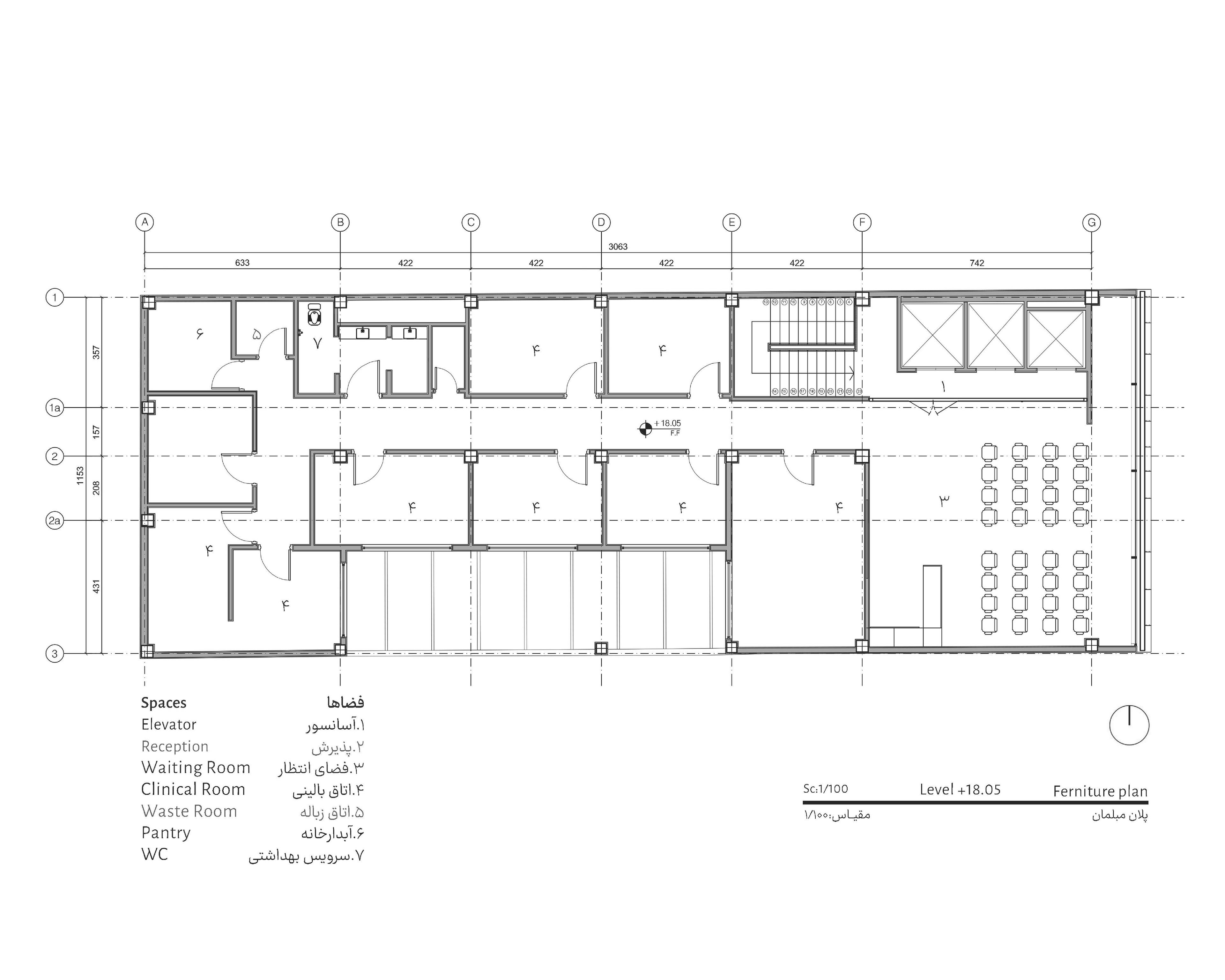
The Nazarabad project has been carried out in the form of designing a commercial-office complex with 2300 square meters of building, seven floors on the ground and one basement floor in the Nazarabad section of Karaj.

Challenges of this project include a large atrium on all floors and uniquely designed staircases on each floor, allowing the form of the lower floors' staircases to be visible from each floor. Due to the owner's profession, the ground floor of the complex houses a pharmacy, and the fifth floor includes a medical section. Additionally, at the owner's request, the top two floors of the complex are dedicated to the design of a personal suite for their comfort and convenience.

In some sections, such as the pharmacy unit, the installations are exposed. Furthermore, all floors feature wooden louvers, linear lighting on the ceilings, and two shades of gray tiles for the flooring.

Given the client's preference for modern and minimalist materials, the facade incorporates exposed concrete, concrete frames, metal sheets, aluminum windows, metal handrails, and dark-colored glass.

The aim of this project was to create a high-quality functional space to meet the needs of the local community, with the main design approach focusing on ease of access and comfort for the people. Sent from my iPhone

6
10
3
1
Perspective.re
Perspective1.re
Level  3.80.re
Level 1.05.re
Level 5.90.re
Level 9.95.re
Level 14.re
Level 18.05.re
Level 22.25.re
Level 25.10.re
Level 28.10.re
11
13
14
12.
Elevation.re
3D Section.re
9
1
/
22